Transformatie monumentaal schoolgebouw naar Medisch Centrum
Het voormalig leegstaande schoolgebouw is gevestigd in de Rivierenbuurt van Amsterdam-Zuid, naast het congrescentrum RAI. Het pand maakt deel uit van het stedenbouwkundige ‘Plan Zuid’ van de architect H.P. Berlage en is gebouwd in 1933 als gereformeerde kweekschool. De afgelopen twintig jaar bood het ruimte aan het Amsterdam Mediacollege.
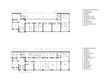
Ruimtelijke opzet
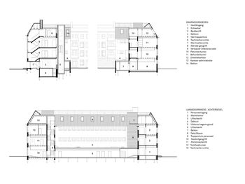
De buitenzijde van het gebouw bevond zich grotendeels in de originele staat, hoewel de binnen- en achterzijde diverse keren is verbouwd. De ruimtelijke opzet was echter ideaal, met bijvoorbeeld brede gangen voor beddentransport. Tevens is het centrum integraal toegankelijk gemaakt door een beddenlift in de hoek van het binnengebied. Daarnaast zorgt een nieuwe daktuin voor extra groen.
De architectonische kwaliteit van het monumentale pand is behouden en zichtbaar gemaakt door onder meer de gemetselde geveltuin op de hoek van het gebouw en de gerestaureerde gevelsteen boven de entreedeur terug te brengen. Nieuwe elementen zijn in dat gevelbeeld ingepast. Voor het interieur is veel gebruik gemaakt van daglicht door de hoge plafonds en vele ramen van het pand.
Duurzaamheid
Op duurzaamheidsvlak zijn tevens verbeteringen geweest. Zo zijn de bestaande bakstenen gevels en pannendaken aan de binnenkant geïsoleerd en zijn achter de kozijnen met enkel glas voorzetramen met isolatieglas geplaatst. De daktuin zorgt bovendien voor een geleidelijke afvoer van regenwater. Tevens zijn er zonnepanelen op de zinken dakuitbouw geplaatst.
De transformatie van het gebouw is in twaalf maanden voltooid. Network of Architects & Planners (NAP) was verantwoordelijk voor het ontwerp.

Het Boerhaave Medisch Centrum in Amsterdam.


Reactie toevoegen